Conception 2D
Habitat modulaire en bois : la maison de demain par WoodVolum
Une maison modulaire écologique et durable
Choisir une maison modulaire en bois, c’est opter pour un habitat modulaire respectueux de l’environnement et pensé pour durer. Contrairement à une construction traditionnelle, souvent longue et énergivore, la construction modulaire en bois repose sur une fabrication en usine qui réduit considérablement les déchets et optimise l’utilisation des matériaux.
Le bois utilisé par WoodVolum provient de forêts gérées durablement, garantissant un impact environnemental limité.
Ce matériau écologique est également un isolant naturel, offrant un confort thermique et acoustique optimal tout au long de l’année.
Résultat : une habitation modulaire qui réduit vos factures énergétiques et encourage un mode de vie plus responsable.
Avec WoodVolum, chaque maison modulaire bois allie
qualité de fabrication, respect de la planète et modernité.

Une construction modulaire rapide et efficace
L’un des principaux atouts des maisons modulaires en bois est la rapidité de construction. Là où une maison traditionnelle nécessite plusieurs mois, voire des années, une construction maison modulaire est réalisée en quelques semaines seulement.
Le déroulé d'un projet réalisé
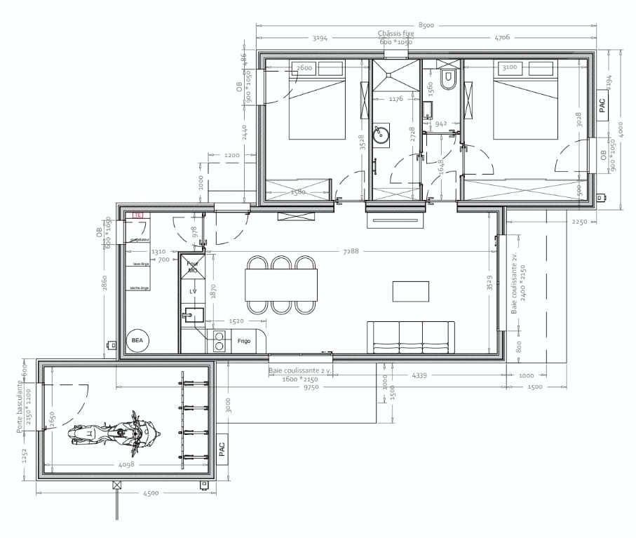
Pour ce projet modulaire de 68 m² à La Pommeraye (49), nous avons d’abord élaboré les plans 2D : organisation des 2 chambres, salle de bain, cuisine, pièce de vie et garage. Cette étape garantit une implantation optimale et une circulation fluide dans chaque espace.
68 m²
3 modules
RDC
Les plans 3D permettent au client de se projeter dans sa future maison modulaire : volumes précis, aménagements réalistes et rendu fidèle des espaces de vie. Pour ce projet, cette visualisation a confirmé l’équilibre entre fonctionnalité, confort et esthétique.
Après validation des études, place à la construction du module d’habitation. Assemblage, finitions, intégration du garage et installation des équipements : chaque étape est maîtrisée pour livrer une maison clé en main de 68 m², conforme au projet imaginé par notre client.
Des délais réduits et maîtrisés
- Fabrication des modules en usine dans un environnement contrôlé, à l’abri des aléas climatiques.
- Moins de nuisances sur site : le logement modulaire arrive prêt à être assemblé.
- Installation sur le terrain en quelques jours seulement.
Cette approche garantit un gain de temps précieux pour les particuliers comme pour les professionnels, tout en offrant une qualité de conception et d’assemblage irréprochable.
En choisissant un constructeur de maison modulaire comme WoodVolum, vous évitez les retards et profitez d’une maison neuve en un temps record.
Pourquoi choisir WoodVolum comme constructeur de maison modulaire ?
En tant que fabricant de maisons modulaires, WoodVolum se distingue par une expertise reconnue et une approche centrée sur vos besoins.
Choisir notre constructeur de maison modulaire, c’est bénéficier :
- D’une solution écologique, grâce à un habitat modulaire bois respectueux de l’environnement,
- D’une construction rapide, limitant les délais et les imprévus,
- D’un logement personnalisable et évolutif, pour répondre à toutes vos attentes,
- D’une qualité irréprochable, avec des matériaux durables et des finitions modernes,
D’un accompagnement complet, du conseil à la livraison clé en main, avec un service client disponible et attentif.
Habitat modulaire : une nouvelle façon de penser la maison
Les habitats modulaires ouvrent la voie à une nouvelle manière de concevoir le logement : plus écologique, plus rapide et plus économique. Que vous recherchiez une petite maison modulaire, une maison modulaire design, ou une construction modulaire d’habitation familiale, WoodVolum met à votre disposition une équipe dédiée et un savoir-faire reconnu.
Vous avez un projet d’habitat modulaire ? Contactez dès aujourd’hui notre service commercial et concrétisez votre rêve d’une maison en bois modulable, livrée montée, moderne et adaptée à votre style de vie.
FAQ
- L’habitat modulaire en bois est-il vraiment écologique ?
Oui. Le bois provient de forêts gérées durablement et la construction en usine réduit fortement les déchets. L’isolation naturelle, les menuiseries performantes et l’optimisation des matériaux permettent de réduire votre consommation d’énergie au quotidien.
- Combien de temps faut-il pour construire une maison modulaire ?
La majorité du travail est réalisée en atelier. Selon le projet, la fabrication prend quelques semaines et l’installation sur votre terrain seulement quelques jours, ce qui permet d’éviter les retards liés à la météo et aux aléas du chantier traditionnel.
- Peut-on personnaliser complètement une maison modulaire ?
Oui. Contrairement aux idées reçues, une maison modulaire n’est pas standardisée. Style architectural, finitions, agencement, volumes, nombre de chambres, ajout de modules dans le futur… tout est modulable selon vos besoins et votre mode de vie.
- Faut-il un permis de construire pour un habitat modulaire ?
Dans la majorité des cas, oui. Une maison modulaire destinée à devenir un logement nécessite un permis de construire. En revanche, certains projets plus petits peuvent se contenter d’une déclaration préalable. WoodVolum vous accompagne dans toutes les démarches administratives.
- Puis-je agrandir ma maison modulaire plus tard ?
Oui. C’est l’un des grands atouts de l’habitat modulaire : vous pouvez ajouter un ou plusieurs modules dans le futur pour agrandir votre pièce de vie, ajouter une chambre ou créer un bureau.
Plus d'informations
Avant toute construction, nous prenons le temps de comprendre vos besoins : surface, usage, style architectural, contraintes de terrain. À partir de vos idées et de votre budget, nos équipes conçoivent un module sur mesure, optimisé et cohérent avec votre mode de vie. Grâce à la modélisation 3D et à notre expérience de l’habitat bois, chaque détail est anticipé. Résultat : un projet clair, fiable et maîtrisé avant même le début de la fabrication.
Chez WoodVolum, tout est fabriqué dans nos ateliers du Maine-et-Loire : ossature bois, isolation, menuiseries, équipements et finitions. Ce processus hors site garantit une qualité constante, loin des aléas climatiques et des imprévus du chantier. Nos menuisiers et techniciens travaillent avec une précision millimétrique, sur des matériaux durables et locaux. Chaque module est assemblé entièrement terminé, finitions incluses, pour un résultat haut de gamme, maîtrisé et durable.
Chaque module passe par une série de contrôles qualité tout au long de sa fabrication. Isolation biosourcée parfaitement posée, menuiseries aluminium ajustées, réseaux installés proprement, finitions intérieures soignées : rien n’est laissé au hasard. Sols, murs, éclairages et équipements sont installés directement en atelier pour garantir une qualité constante. À cette exigence technique s’ajoute notre savoir-faire artisanal, qui assure un résultat esthétique, durable et réellement prêt à vivre.
Une fois terminé, votre module est transporté en convoi exceptionnel puis installé sur site en quelques heures grâce à une grue PPM. Cette méthode spectaculaire garantit une pose rapide, propre et parfaitement maîtrisée. Les fondations étant déjà prêtes, il ne reste plus qu’à positionner le volume, effectuer les raccordements et finaliser les derniers réglages. Votre habitat est immédiatement fonctionnel : finitions posées, équipements installés, menuiseries testées. Un chantier réduit au minimum, sans stress ni imprévus.